0
Passer au contenu
Projets
Nous
Compétences
Contact
Ouvrir le menu
Fermer le menu
Projets
Nous
Compétences
Contact
Ouvrir le menu
Fermer le menu
Projets
Nous
Compétences
Contact
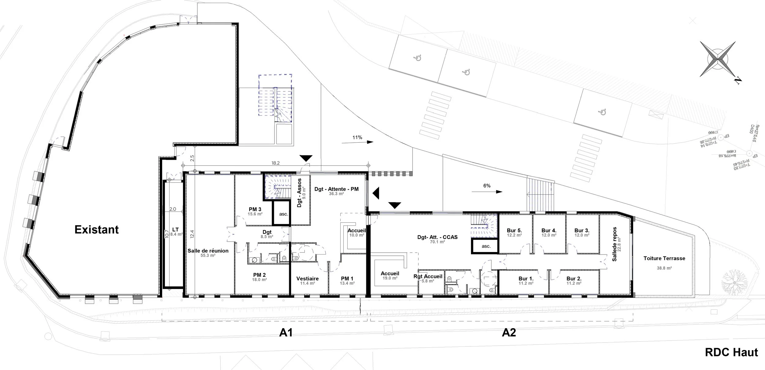
Création d’un pôle communal
Etudes : 2021
Phase : Faisabilité
Lieu : Mimet
Précédent
Précédent
Construction du centre de radiologie - Hyères
Suivant
Suivant
Rénovation - CNRS Marseille