Rénovation du bâtiment MAP au sein du campus CNRS.
En collaboration avec Damien BLAISE - Architecte DPLG
Réalisation : 2018
Lieu : Marseille 9ème
Montant des travaux : 870 000€










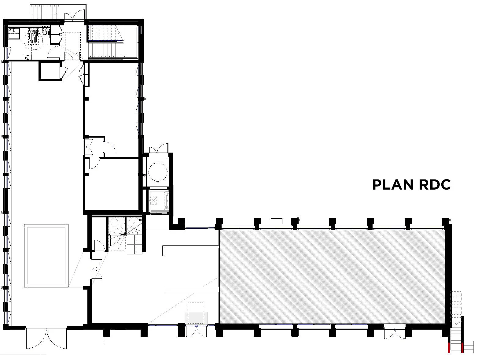
EXISTANT



En collaboration avec Damien BLAISE - Architecte DPLG
Réalisation : 2018
Lieu : Marseille 9ème
Montant des travaux : 870 000€