0
Passer au contenu
Projets
Nous
Compétences
Contact
Ouvrir le menu
Fermer le menu
Projets
Nous
Compétences
Contact
Ouvrir le menu
Fermer le menu
Projets
Nous
Compétences
Contact
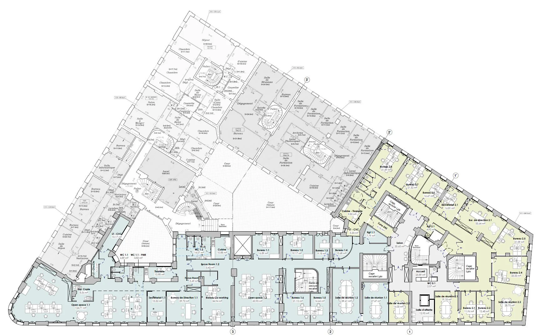
Réaménagement des bureaux dans un immeuble ancien
Réalisation : 2021
Lieu : Marseille 1er
Précédent
Précédent
Rénovation - Maison ROQ
Suivant
Suivant
Aménagement extérieur - Maison JER